固堿蒸發,濃縮,是以高溫熔鹽作為堿蒸發熱源,取代傳統的用火直接加熱的操作過程,滿足了降膜法燒堿濃縮工藝對燃料的嚴格要求。
常州市上能鍋爐有限公司是專業生產制造熔鹽爐的廠家,出廠的熔鹽爐取代了國內早期從<瑞士博特化工裝置有限公司>(Bertrams Chemical Plants Ltd )進口的熔鹽加熱系統中的熔鹽加熱爐。
請關注常州市上能鍋爐公司網站上熔鹽爐產品信息。www.mqbgjj.cn,聯系電話:13815029577(與微信同號)
一、固堿蒸發工藝:
由電解工序來的32%液堿,經32%液堿泵加入到Ⅰ效降膜蒸發器,蒸濃到44%,再由44%液堿泵經堿換熱器預熱到100℃,加入到Ⅱ效降膜蒸發器濃到50%,加入到Ⅲ效降膜濃縮器,被熔鹽加熱爐來的熔鹽加熱蒸發到98%,此熔融堿經片堿機冷卻制成片堿去包裝出廠。
二、熔鹽爐,熔鹽加熱爐裝置生產工藝特點:
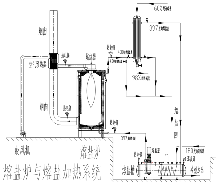
熔鹽經泵自熔鹽槽通過燃燒天燃氣的強制循環熔鹽加熱爐進行循環,加熱至430℃.煙道氣將在燃燒器中通過熱輻射和對流產生的熱量傳遞給熔鹽。從熔鹽爐出來后,熔鹽循環至最終濃縮器的下部收集管,并均勻地分配至各濃縮降膜管,在降膜管內,鹽流與堿流逆向流動。熔鹽加熱使堿濃度從62.2%左右升高到98%左右,冷卻的熔鹽通過重力作用從最終濃縮器出口向下流人熔鹽槽。助燃空氣風機為燃燒器提供經過預熱的約220℃助燃熱空氣進燃燒器,提高爐膛溫度,節省使用成本。助燃空氣在助燃空氣預熱器中通過煙道氣被加熱至約220℃之后,冷卻后的煙道氣通過煙囪排向大氣。
三、熱載體熔鹽介紹:
熔鹽作為加熱系統中的熱載體,是由53% KNO3、7%NaNO3和40%NaNO2組成的共晶體,其熔點為142℃,沸點為680℃,450℃時的密度為1804kg/m3,熱容為1.520 kJ/(kg·℃),平均相對分子量為89.2,熔融熱18kcal/kg,,由此可知熔鹽是一種由化學純硝酸鹽混合體組成的低共熔點混合物,具有良好的導熱性、流動性和均熱性,因此常用來作為載熱體介質。
粉狀的鹽類放入熔鹽槽,通過槽內安裝的中壓蒸汽(電加熱器)加熱融化為液態,直加熱到槽內熔鹽的粘度可以用循環泵打循環狀態后,送到加熱爐進一步循環升溫,達到可以使用的溫度。
熔鹽槽的容積,必須充分考慮粉狀鹽熔操作增加的容量及停止運行時高溫熔鹽的排放量,熔鹽槽必須以一定的方式控制,以保證槽內保持一定的溫度。
熔鹽載熱體系統的配管設計,設備的構造很重要。若載體在系統內出現滯留因放熱而固化,則可引起加熱管的堵塞。當運行停止時,循環系統內的載體要排入熔鹽槽。
四、熔鹽加熱爐裝置主要由熔鹽循環供熱系統、燃燒系統、電氣控制系統組成。

熔鹽爐本體,熔鹽槽,熔鹽泵及有關輸送管線、閥門等構成熔鹽爐供熱循環系統;
爐本體、燃燒器、空氣預熱器,煙道,煙囪等組成熔鹽爐燃燒節能系統;
電氣控制柜及有關測溫元件組成熔鹽爐電氣控制系統。
五、熔鹽加熱系統中主要設備介紹:
主要設備有:熔鹽加熱爐本體、燃燒器、空氣預熱器,熔鹽槽、熔鹽泵、
① 熔鹽加熱爐的基本操作模式,爐本體結構、爐管規格材質介紹:
1.熔鹽爐在控制室里遠程控制熔鹽爐的啟動、燃燒和停止的全部過程,以及供熱量的全部調節過程,在熔鹽爐安裝的現場為全自動操作。
2.熔鹽爐為立式圓筒螺旋盤管結構,其受熱面由內,外二層螺旋盤管及頂,底盤管組成,燃燒器置于爐頂中心。高溫煙氣由上而下與頂盤管,內層盤管和底盤管輻射換熱后,再從內層盤管底部由下而上進入內,外二層盤管之間所構成的第一對流換熱區,經對流換熱后從外層盤管上部進入外盤管與殼體之間所構成的第二對流換熱區,由上而下對流換熱后,由殼體下部排煙口排出。熔鹽由下聯箱進入爐體,在爐內吸收熱量后,從上聯箱排出。外盤管和底盤管支承在爐底盤管支架上,內盤管和頂盤管由吊掛裝置吊掛在殼體上。
盤管采用12Cr1MoV高溫高壓鍋爐鋼管,制作時為緊密排列。爐管對接采用氬弧焊,施焊前對坡口檢查并預熱,焊后做退火處理消除焊接和加工引起的應力。焊后進行射線探傷檢查,探傷比例:盤管100%,集管100%。射線探傷按JB/T4730標準進行,二級以上合格。
盤管彎制完畢后作整體熱處理,以消除加工后的殘余應力。同時爐管還應作通球和液壓試驗,通球試驗方法按JB/T1611-1993中5.2條進行試驗,液壓試驗時每層盤管的水壓試驗壓力為2.6MPa,整體組裝后再進行壓力試驗,壓力為1.95MPa,盤管的最高工作壓力為1.3MPa.
爐底設置人孔及視鏡,定期對熔鹽加熱爐檢查及運行中觀察爐內火焰燃燒狀況。
②熔鹽加熱爐燃燒器介紹:
對于國內早期從瑞士博特瑞姆斯公司(Bertrams Chemical Plants Ltd )進口的熔鹽加熱爐,已出現熔鹽加熱爐盤管堵塞,爐管損壞的客戶,可以換熔鹽加熱爐的爐本體,燃燒器可以照舊利用。瑞士博特瑞姆斯公司進口的熔鹽加熱爐燃燒器為氫氣燃燒器具多,固堿生產廠家,有自產的氫氣。
根據項目工藝特點和系統可靠性,我們選用意大利進口分體型低氮燃氣燃燒器(燃燒頭與風機分開),滿足頂燃向下布置 ,燃燒器具有性能優良,操作維護方便,燃燒林克曼黑度為0。燃燒器盡可能減少燃燒過程中產生的氧化氣,具有低NOX燃燒技術,NOx≤50毫克/m3,煙氣排放符合當地的《鍋爐大氣污染物排放標準》要求,燃燒器拆卸方便,具有自控和點火、熄火、空氣吹掃等安全聯鎖保護裝置。
燃燒器是由幾大模塊結構組合而成,主要有①燃燒器② 鼓風機③控制器
為保證充分燃燒,燃燒器機頭采用帶有喉口結構;助燃空氣通道采用環式結構,分主燃燒風和中心旋流風,增加燃料氣與助燃空氣的充分混合,同時保證火焰的穩定性。
燃燒器采用比例調節控制,具有燃燒程序控制, 比例調節控制和安全保護控制等功能.可設有自動和手動功能,運行安全可靠。
燃燒器有火焰探頭檢測火焰,能檢測到的火焰強度信號,聯鎖控制熔鹽爐的停爐。
有關燃燒器詳細內容見燃燒器相關資料并符《燃燒器型式試驗報告》
③ 空氣預熱器介紹:
空氣預熱器:
熔鹽加熱爐出煙口處設置空氣預熱器作為余熱回收裝置,所預熱的空氣,溫度達200℃左右,作為助燃熱空氣,提高爐膛溫度,節省燃料成本。熔鹽爐出煙口處煙氣溫度在450℃左右,經空預器換熱利用,最終排煙溫度小于200℃以下,有效利用了余熱。
空氣預熱器結構型式:鍋殼煙管式結構,換熱管材質:GB3087鍋爐鋼管,煙氣走管程,空氣走殼程。
④熔鹽加熱爐熔鹽儲槽介紹:
熔鹽儲槽在供熱系統中起著儲鹽、熱膨脹和排氣功能。熔鹽槽容積除根據整個熔鹽系統的熔鹽量外,還必需結合熔鹽泵的流量、安裝和汽蝕特性等一并考慮;系統啟動時,將粉態熔鹽放入,固態的熔鹽在此被加熱變為液態熔鹽,停車時系統中的熔鹽又全部回流到槽中。熔鹽槽內放置多組電加熱器或者中壓蒸汽,<蒸汽壓力為1.0MPa,飽和蒸汽溫度為184℃,壓力為0.8MPa,飽和蒸汽溫度為175℃>,作啟動時熔化熔鹽所用。(固堿生產廠家,有蒸汽鍋爐)
熔鹽量根據用戶提供的用熱設備(換熱器)的容積+熔鹽爐自身的容積之和,確定熔鹽儲槽的大小,介質為三元熔鹽,設計壓力0.6MPa,設計溫度450℃,熔鹽槽材質為:Q345R,GB713。熔鹽槽上設有加鹽口,熔鹽泵接口,熔鹽回流口,放空口及中壓蒸汽接管等,槽體上裝有雙金屬溫度計,熱電偶溫度計,現場目測熔鹽槽內熔鹽的溫度及控制面板上數顯溫度。熔鹽槽安裝于地坑中,具體見熔鹽槽圖紙及系統圖。注:熔鹽儲槽由固堿生產廠家自備。
⑤高溫熔鹽泵介紹:
熔鹽泵是整個供熱系統循環的動力設備,最好是一用一備。熔鹽泵的流量,揚程由熔鹽加熱爐廠家提供的熔鹽加熱爐技術參數決定,用戶向熔鹽泵廠家自購。
六、熔鹽加熱爐控制系統介紹:
熔鹽爐控制系統分為動力控制,空管預熱控制,儀表顯示控制,三部分組成。
1. 動力控制:
主要控制熔鹽槽內的熔鹽循環泵、風機、燃燒器等設備的起動與停止,同時循環泵與燃燒器之間進行聯鎖控制以保證加熱爐的安全運行。
熔鹽泵起動的條件是:熔鹽槽內熔鹽的溫度>180℃,熔鹽加熱爐內外盤管溫度>230℃,
燃燒器起動的條件是:熔鹽泵熔鹽介質循環,至熔鹽爐,至用熱設備,至熔鹽槽循環量正常,燃燒器才能投入正常運行。
2. 空管預熱控制:
燃燒器采用進口低氮燃燒器,該燃燒器具有大小可調的燃燒量,在空管預熱時,只采用最小量的燃燒,同時對熔鹽爐的上下及內外盤管都設點進行連鎖,一旦有一個點的溫度超過上限設定時,即停燃燒器,當回到下限設定值以下時,才能啟動燃燒器,只有當全部的點溫度都在上限設定值以下時,燃燒器小量才能工作。
3. 儀表控制:
熔鹽爐的負荷是根據智能儀表對熔鹽爐熔鹽出口溫度(即熔鹽槽內熔鹽的溫度)的設置,通過儀表智能計算,進行 PID 調節功能, 自動調節燃料量與空氣供給量;同時聯鎖控制熔鹽爐的超溫,燃燒器的啟動與停止,以充分滿足控制要求,使其達到自動控制功能。
儀表顯示:熔鹽爐進出口熔鹽溫度顯示、爐本體排煙溫度顯示,熱風溫度顯示,熔鹽槽內熔鹽溫度顯示,實時數據監控,實現熔鹽爐的系統安全保護功能,使熔鹽爐保持安全運行。
4.通過電氣與儀表實時數據的監控,對熔鹽爐主機燃燒檢測,安全控制技術方案說明如下:
4.1. 能自動檢測熔鹽爐進出口熔鹽的溫度、該值符合工作要求,則繼續確認燃氣是否有存在泄漏或壓力異常情況,如果一切正常則打開燃燒器風門至最大開度,進行前吹掃以清除可能殘留在爐膛內的燃氣,吹掃完畢,關小風門至點火負荷位置,然后發出點火信號,數秒后若火焰監測器檢測至火焰則說明點火成功,燃燒程控器慢慢打開主燃料電磁閥,燃燒器進行大火焰燃燒直至出口熔鹽溫度接近設定值時進行溫度PID自動調節,調節燃料流量,燃燒空氣量,保證出口熔鹽溫度控制,滿足工藝要求的范圍之內。
4.2. 本操作柜能對系統的所有參數進行自動檢測、控制, 并執行預報警、報警和自動停爐的保護功能,在運行過程中若熔鹽爐出口熔鹽溫度超溫則自動停爐,當出口油溫恢復到設定區間之內時燃燒自動重新點火燃燒,若出現熔鹽泵停機,燃料壓力異常情況時則自動停爐并發出聲光報警信號。
4.3.在設計編程過程中充分考慮了加熱爐系統的安全保護功能,確保加熱爐安全高效運行,設有以下聯鎖點:
1)熔鹽爐熔鹽出口溫度過高保護:在出熔鹽爐溫度高出設定值△t時,熔鹽爐報警并停燃燒器,只有在溫度回落到設定值以下△t’時,燃燒器才重新開始啟動。
2)爐體排煙溫度過高保護:爐體排煙溫度過高時,停爐并報警。
3)停火保護:在爐子啟動前自動檢測爐內有無火焰信號,點著火之后,長期監視爐內火焰,一旦熄火,自動關閉電磁閥,報警并送出停火信號。
4)助燃空氣壓力過低保護,燃燒器附有風壓開關進行聯鎖,一旦風壓過低即停燃燒器。
5)燃氣壓力過低或過高保護,燃燒器附有燃氣高壓和低壓開關,一旦氣壓過高或過低,則停燃燒器。
6)燃燒器自動檢漏,一旦泄漏,自動保護并送出泄漏信號。
7) 連鎖控制:在熔鹽爐運行過程中,必須保證整個系統的每個設備都是正常工作。一旦出現那個設備的參數出現不正常的變動,即進行停爐,并報警,以確保整個系統的安全運行。
5.在自動控制系統的管理下,通過各系統的互相協調,實現以下功能:
l 為用熱設備提供滿足負荷要求的穩定高溫熱源;
l 保持整個熱系統穩定運行,實現不間斷連續運行;
l 實現熔鹽爐熱負荷自動調節;
l 實現熔鹽爐在非正常工況下的安全聯鎖反饋保護;
l 具有各種非正常情況下的預警、報警、故障鎖定等功能;
l 實現熔鹽爐開爐、停爐時風機自動吹掃功能;
l 可實現自動無人運行。
采購熔鹽爐請關注(上能公司網站: www.mqbgjj.cn
Please pay attention to purchasing molten salt furnaces (website of Shangneng Company: www.mqbgjj.cn)
歡迎國內外客戶前來我工廠考察指導,合作共贏!
Welcome domestic and foreign customers to come to our factory for inspection and guidance, cooperation and win-win!
聯系人:芮亞平手機號與微信號同號:13815029577
Contact person: Rui Yaping. Phone number and WeChat ID are the same: 13815029577